det flydende aktivitetshus

Type: Totalentreprisekonkurrence, 2. præmie
Sted: Sandkaj i Nordhavn
Bygherre: By og Havn
Entreprisesum: 6,5 mio
Rolle: Arkitekt

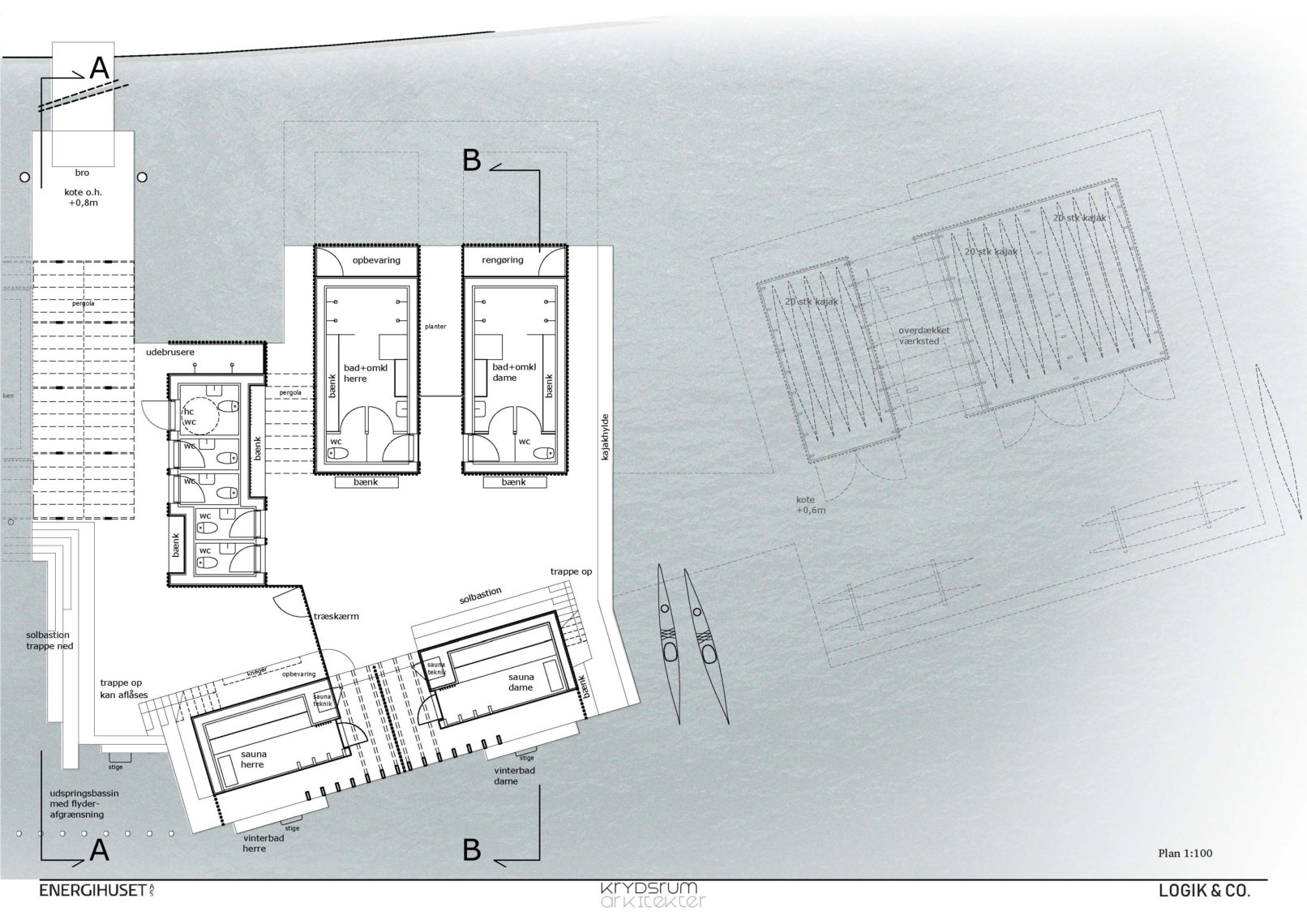
”Vandlejet ved Sandkaj” bliver det nye sted for en bred forskellige aktiviteter på, i, og ved, vandet beliggende i Nordbassinet i Nordhavn. Aktiviteter der kan foregå hele året af en række forskellige brugergrupper. Det bliver et flydende aktivitetshus Med inspiration fra de gamle fiskerlejer og små fiskerskure som vi fx i Nordhavnen kender det fra den gamle skudehavn, skabes et fortættet nærmiljø af mindre huse der tilsammen danner et landskabeligt og rumligt hele. Samtidig er der skabt gode muligheder for naturlige udbygninger af både foreningernes specifikke behov for fx et kommende ”kajak-leje”, og generelle behov for et ”fælleshus” og fx ”et sand-leje” for offentligheden. De små bygningers indbyrdes forhold og funktioner skaber gode muligheder for ophold og vandaktiviteter for mindre grupper af mennesker samt intime rum til mindre forsamlinger for de aktive foreninger. Bygningernes organisering skaber samtidig et godt mikroklima med masser af sol, læ og ly, hvor også uderummene kan udnyttes store dele af året. Vandlejet står i bevidst kontrast til de høje bolig- og erhvervsbebyggelser langs Sandkaj og indfører en mere kropsnær skala og et tættere nærmiljø i det store rum. Samtidig passer det fint ind i konteksten, da det er bygget som et flydende leje der har vandet som sit element, og dermed ikke ”konkurrerer” med bygningerne. Bygningernes udtryk og byggemetoden er inspireret af vores stærke nordiske byggetradition for træbyggeri og baseres på et velkendt udtryk fra danske havnemiljøer. Projektet er en samlet vision om et bæredygtigt byggeri for fælleskabet. Det er på en og samme tid både socialt og kulturelt forankret, og samtidig har det en miljømæssigt skarp profil i materialeholdning og lav miljøpåvirkning. Vandlejet er både funktionelt, holdbart og smukt.

Projektleder: Logik og Co
Arkitekt: Krydsrum
Ingeniør: Energihuset