bkc klubhus

Type: Ny kajakklub
Sted: Rundholtsvej, København S
Bygherre: BKC Bryggens Kajak Klub
Udført: 2015 (dispositionsforslag)
Entreprisesum: 5 mio
Rolle: Totalrådgivning

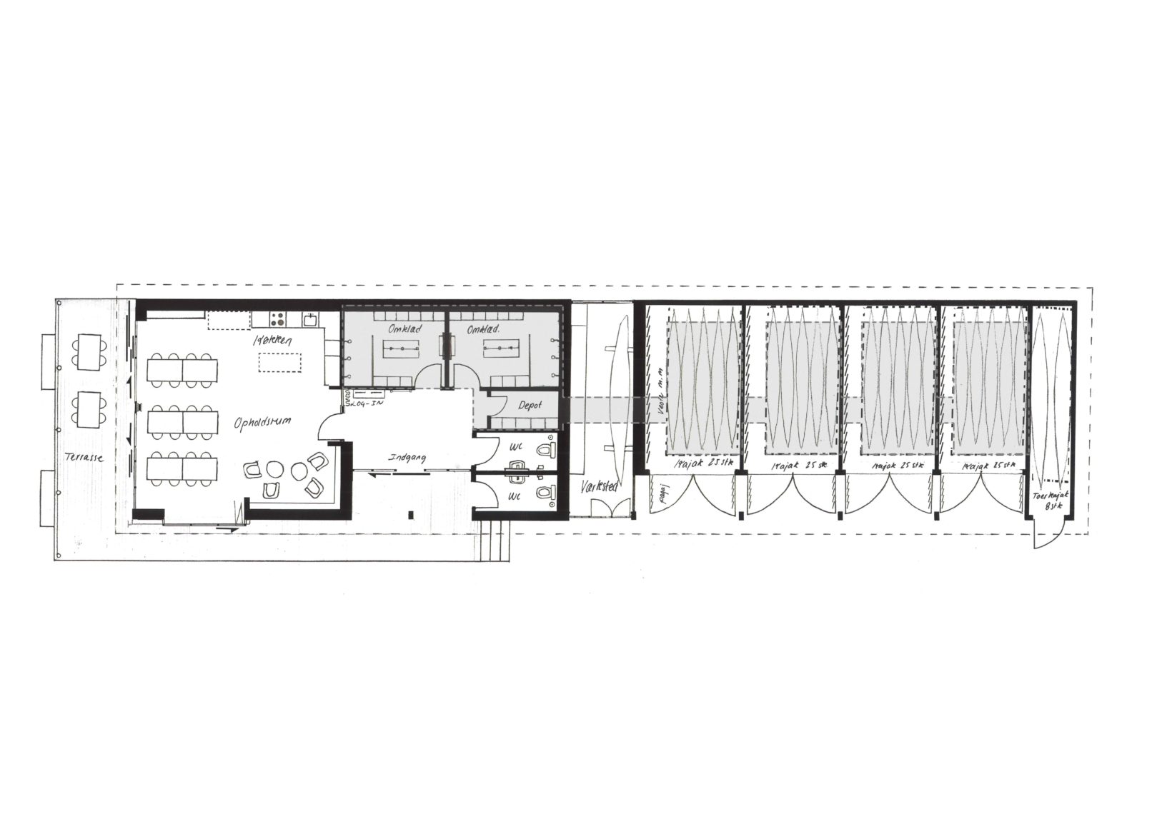
På Islands Brygge ved den nye Havnevig ligger Bryggens Kajakklub. Det eksisterende klubhus er udtjent og visionen om et nyt klubhus genrejst fra “det gamles aske” er klar.

“Nyt klubhus til Bryggens Kajakklub” er resultatet af brugernes behov for nye faciliteter der både understøtter klubkulturen og fremtidens udvikling i området

Bevarelse og styrkelse af den eksisterende klubkultur og sejlklubområdets karakter af smalle længebygninger og rum der åbner sig mod vandet styrkes med dette projekt.

Bæredygtighed, up-cykling, lave driftomkostninger og robusthed er sammen med bådhuskarakteren afgørende elementer i projektet.
Bygningen står på “skruer” og opholdsdelen af bygningen er hævet over terræn for at undgå at fjerne forurenet jord på grunden, samt hævet terrasse der indikerer privathed for forbipasserende.